產品介紹
【產品用途】
Z40H美標閘閥適用于 ANSI Class150~2500、PN20~42、JIS10~20K,工作溫度 -29~425℃(碳鋼)及 -40~500℃(不銹鋼)的名種管路上,用于截斷或接通管路中的介質。通過選用不同的材質,可適用于水、蒸汽、油品、硝酸、醋酸、強氧化性介質及尿素等多種介質。
產品特點:①產品設計制造符合國外先進標準要求,密封可靠,性能優良。②結構設計緊湊合理,造型美觀。③采用楔式彈性閘板結構,中大口徑設置滾動軸承,啟閉輕松。④閥體材料品種齊全,填料、墊片根據實際工況或用戶要求合理選配,可適用于各種壓力、溫度及介質工況。⑤采用國內外多種配管法蘭標準及法蘭密封面型式,滿足各種工程需要及用戶要求。
【產品執行標準】
設計與制造:API 600
法蘭尺寸:ANSI B16.5
結構長度:ANSI B16.10
壓力~溫度:ANSI B16.34
檢驗與試驗:API 598
【產品性能規范】
Z40H美標閘閥主要性能規范| 公稱壓力(Lb) | 強度試驗 | 水密封試驗 | 氣密封試驗 | |||
|---|---|---|---|---|---|---|
| MPa | Lbf/in2 | Mpa | Lbf/in2 | MPa | Lbf/in2 | |
| 150 | 3.1 | 450 | 2.2 | 315 | 0.5~0.7 | 60~100 |
| 300 | 7.8 | 1125 | 5.6 | 815 | ||
| 600 | 15.3 | 2225 | 11.2 | 1630 | ||
【產品零部件材質】
Z40H美標閘閥主要零件材質| 閥體、閥蓋、閘板 | WCB | ZG1Cr18Ni9Ti | CF8(304) | CF3(304L) | ZG1Cr18Ni12Mo2Ti | CF8M(316) |
|---|---|---|---|---|---|---|
| 密封面 | Cr13或硬質合金 | 本體(W)或硬質合金(Y) | ||||
| 閥桿及內件 | 2Cr13 | 1Cr18Ni9Ti | 0Cr19Ni9(304) | 00Cr19Ni11(304L) | 1Cr18Ni12Mo2Ti | 0Cr17Ni12Mo2(316) |
| 填料 | 柔性石墨 | |||||
| 墊片 | 不銹鋼纏繞墊片 | |||||
| 適用介質 | 水、蒸汽、油品等 | 硝酸等腐蝕性介質 | 強氧化性介質 | 醋酸等腐蝕性介質 | ||
| 適用溫度 | -29~425 ℃ | -40~500 ℃ | ||||
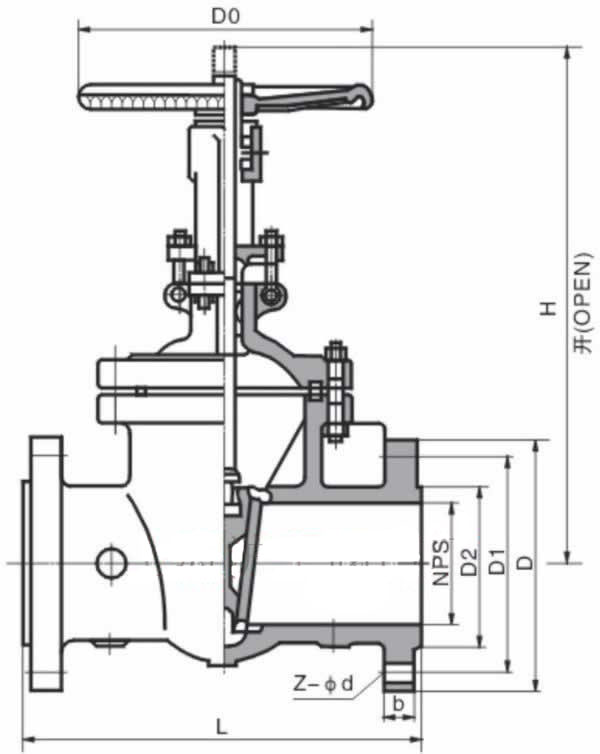
【產品外形和連接尺寸】
Z40H美標閘閥主要外形和連接尺寸|
公斤級 或 公稱壓力 |
DN | 尺寸(mm) | 重量(kg) | ||||||||||||||
|---|---|---|---|---|---|---|---|---|---|---|---|---|---|---|---|---|---|
| d | L | LJ | D | D1 | D2 | b | Z-φd | W | H開 | ||||||||
| mm | in | ZA40 | ZA540 | ZA940 | ZA40 | ZA540 | ZA940 | ||||||||||
|
Class150 PN2.0MPa |
25 | 1 | 25 | 127 | 140 | 108 | 79.5 | 51 | 11.5 | 4-15 | 120 | 200 | - | 330 | 7 | - | 31 |
| 32 | 1 1/4 | 32 | 140 | 153 | 117 | 89 | 64 | 13.0 | 4-15 | 140 | 235 | - | 375 | 9 | - | 33 | |
| 40 | 1 1/2 | 38 | 165 | 178 | 127 | 98.5 | 73 | 14.5 | 4-15 | 180 | 285 | - | 435 | 13 | - | 38 | |
| 50 | 2 | 51 | 178 | 191 | 152 | 120.5 | 92 | 16.0 | 4-19 | 180 | 390 | - | 610 | 19 | - | 45 | |
| 65 | 2 1/2 | 64 | 190 | 203 | 178 | 139.5 | 105 | 17.5 | 4-19 | 200 | 435 | - | 655 | 24 | - | 65 | |
| 80 | 3 | 76 | 203 | 216 | 190 | 152.5 | 127 | 19.5 | 4-19 | 200 | 515 | - | 680 | 36 | - | 85 | |
| 100 | 4 | 102 | 229 | 242 | 229 | 190.5 | 157 | 24.0 | 8-19 | 250 | 595 | - | 750 | 46 | - | 95 | |
| 125 | 5 | 127 | 254 | 267 | 254 | 216.0 | 186 | 24.0 | 8-22 | 250 | 725 | - | 820 | 65 | - | 115 | |
| 150 | 6 | 152 | 267 | 280 | 279 | 241.5 | 216 | 25.5 | 8-22 | 300 | 780 | - | 900 | 82 | - | 135 | |
| 200 | 8 | 203 | 292 | 305 | 343 | 298.5 | 270 | 29.0 | 8-22 | 300 | 975 | 1010 | 1060 | 126 | 155 | 182 | |
| 250 | 10 | 254 | 330 | 343 | 406 | 362.0 | 324 | 30.5 | 12-25 | 350 | 1150 | 1190 | 1250 | 178 | 213 | 230 | |
| 300 | 12 | 305 | 356 | 369 | 483 | 432.0 | 381 | 32.0 | 12-25 | 400 | 1380 | 1420 | 1500 | 258 | 290 | 320 | |
| 350 | 14 | 337 | 381 | 394 | 533 | 476.0 | 413 | 35.0 | 12-29 | 400 | 1540 | 1580 | 1750 | 385 | 430 | 470 | |
| 400 | 16 | 387 | 406 | 419 | 597 | 540.0 | 470 | 37.0 | 16-29 | 500 | 1740 | 1780 | 1950 | 485 | 540 | 610 | |
| 450 | 18 | 438 | 432 | 445 | 635 | 578 | 533 | 40 | 16-32 | 500 | 1950 | 1990 | 2150 | 580 | 640 | 710 | |
| 500 | 20 | 489 | 457 | 470 | 699 | 635.0 | 584 | 43.0 | 20-32 | 600 | 2180 | 2220 | 2350 | 680 | 740 | 820 | |
| 600 | 24 | 591 | 508 | 521 | 813 | 749.5 | 692 | 48.0 | 20-32 | 650 | 2560 | 2600 | 2710 | 940 | 1000 | 1080 | |
|
Class300 PN5.0MPa |
25 | 1 | 25 | 165 | 178 | 124 | 89.0 | 51 | 17.5 | 4-19 | 140 | 215 | - | 370 | 9 | - | 38 |
| 32 | 1 1/4 | 32 | 178 | 191 | 133 | 98.5 | 64 | 19.5 | 4-19 | 180 | 255 | - | 420 | 12 | - | 42 | |
| 40 | 1 1/2 | 38 | 190 | 203 | 156 | 114.5 | 73 | 21.0 | 4-22 | 200 | 320 | - | 480 | 16 | - | 55 | |
| 50 | 2 | 51 | 216 | 232 | 165 | 127.0 | 92 | 22.5 | 8-19 | 200 | 425 | - | 650 | 26 | - | 69 | |
| 65 | 2 1/2 | 64 | 241 | 257 | 190 | 149.0 | 105 | 25.5 | 8-22 | 250 | 460 | - | 700 | 34 | - | 80 | |
| 80 | 3 | 76 | 283 | 299 | 210 | 168.5 | 127 | 29.0 | 8-22 | 300 | 540 | - | 740 | 47 | - | 100 | |
| 100 | 4 | 102 | 305 | 321 | 254 | 200.0 | 157 | 32.0 | 8-22 | 300 | 630 | - | 795 | 73 | - | 110 | |
| 125 | 5 | 127 | 381 | 397 | 279 | 235.0 | 186 | 35.0 | 8-22 | 350 | 760 | - | 850 | 110 | - | 145 | |
| 150 | 6 | 152 | 403 | 419 | 318 | 270.0 | 216 | 37.0 | 12-22 | 350 | 825 | - | 990 | 130 | - | 200 | |
| 200 | 8 | 203 | 419 | 435 | 381 | 330.0 | 270 | 41.5 | 12-25 | 400 | 1020 | 1055 | 1150 | 210 | 250 | 295 | |
| 250 | 10 | 254 | 457 | 473 | 445 | 387.5 | 324 | 48.0 | 16-29 | 450 | 1200 | 1240 | 1350 | 280 | 340 | 390 | |
| 300 | 12 | 305 | 502 | 518 | 521 | 451.0 | 381 | 51.0 | 16-32 | 500 | 1425 | 1465 | 1560 | 400 | 450 | 570 | |
|
Class600 PN10.0MPa |
25 | 1 | 25 | 216 | 216 | 124 | 89.0 | 51 | 17.5 | 4-19 | 180 | 215 | - | 420 | 16 | - | 52 |
| 32 | 1 1/4 | 32 | 229 | 229 | 133 | 98.5 | 64 | 21.0 | 4-19 | 180 | 270 | - | 480 | 25 | - | 62 | |
| 40 | 1 1/2 | 38 | 241 | 241 | 156 | 114.5 | 73 | 22.5 | 4-22 | 200 | 345 | - | 550 | 30 | - | 74 | |
| 50 | 2 | 51 | 292 | 295 | 165 | 127.0 | 92 | 25.5 | 8-19 | 250 | 470 | - | 680 | 42 | - | 82 | |
| 65 | 2 1/2 | 64 | 330 | 333 | 190 | 149.0 | 105 | 29.0 | 8-22 | 250 | 520 | - | 750 | 55 | - | 97 | |
| 80 | 3 | 76 | 356 | 359 | 210 | 168.5 | 127 | 32.0 | 8-22 | 300 | 570 | - | 820 | 70 | - | 120 | |
| 100 | 4 | 102 | 432 | 435 | 273 | 216.0 | 157 | 38.5 | 8-25 | 300 | 700 | - | 870 | 120 | - | 155 | |
| 125 | 5 | 127 | 508 | 511 | 330 | 266.5 | 186 | 44.5 | 8-29 | 350 | 780 | - | 950 | 180 | - | 250 | |
| 150 | 6 | 152 | 559 | 562 | 356 | 292.0 | 216 | 48.0 | 12-29 | 400 | 850 | 890 | 1100 | 250 | 290 | 340 | |
【產品外形和連接尺寸尺寸示意圖】

精心締造,優質品質!!! www.310m.cn 瑞奇閥門
更多產品







